30TPD Maize Milling Project
The 30TPD maize milling plant from Voson is a reliable solution for medium-scale maize processing, with a capacity of 30 tons per day. This plant is widely adopted by food manufacturers, local millers, and agricultural processors in Africa, South America, and parts of Eastern Europe, where demand for medium-capacity maize flour production is strong. It combines advanced cleaning, roller milling, sifting, and packing technologies, ensuring high extraction rates and consistent flour quality.

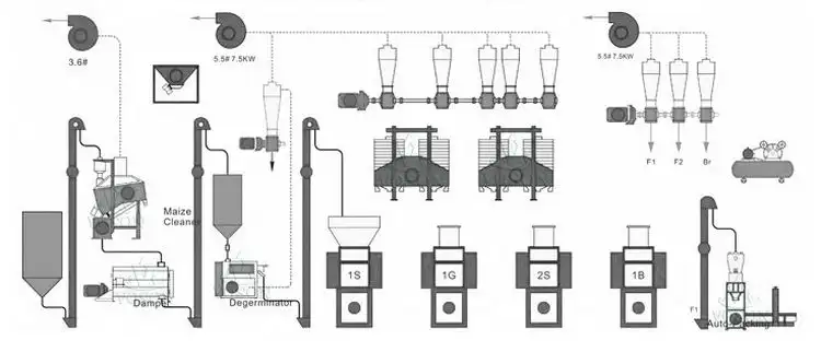
Process Flow of 30TPD Maize Milling Plant
In the 30t maize flour milling machine, there are 2 sets of double bin sieve to improve the grinding efficiency, and the entire production line is more automated.

1. Cleaning Section
Raw maize is cleaned through a vibrating screen, destoner, and magnetic separator, effectively removing stones, sand, dust, and metallic particles. This ensures smooth downstream milling and protects machinery.
2. Conditioning & Milling Section
Conditioned maize is processed in roller mills equipped with plansifters and purifiers. This ensures efficient separation of endosperm from bran and germ, producing fine and coarse maize flour as required.
3. Sifting & Grading Section
The plansifter separates flour by particle size, delivering uniform product quality. Flour is graded into fine flour, maize meal, and maize grits depending on customer requirements.
4. Packing Section
Automatic weighing and bagging machines are installed to package flour into 1–25 kg bags, ready for retail and industrial customers.


Technical Parameters of Voson 30TPD Maize Milling Plant
| Capacity | 30 tons per day |
| Extraction rate | 75-80% Grade 1 82-85% Grade 2 |
| Power | 80 kw |
| Footprint | Customizable |
By the way, there are complete 50t maize milling machine, 150t maize flour milling plant, 250t corn grits and flour milling plant, 500t maize milling plant, we can customize according your need. Every customer deserves our best service. Get a Free Customize
Key Features and Advantages of Voson 30TPD Plant
Medium-Scale Design – Perfect for enterprises requiring stable daily flour output.
Efficient Cleaning & Milling – Multi-stage cleaning and roller milling system.
Versatile Flour Products – Capable of producing fine flour, maize meal, and grits.
Reliable Automation – Semi-automatic PLC control for smoother operation.
Energy Saving – Optimized roller mills reduce power consumption.
Turnkey Solutions by Voson – From engineering design to installation and after-sales support.
Popular in Emerging Markets – Especially in Africa, South America, and Eastern Europe, where medium-capacity milling plants are in high demand.
Types of Maize Flour Produced

